- Vložka s rozšířenou, hlubokou obdélníkovou spalovací komorou umožňující velké zatížení.
- Výklopný litinový rošt pro snadné čištění topeniště .
- Dekorativní žáruvzdorné sklo DECOR ELEGANCE standardně (provozní teplota do 800 stupňů).
- Možnost objednání vyhrazených krytů (ocel s práškovým nástřikem v barvě vložky).
- Litinový kouřovod s nastavením 360 stupňů.
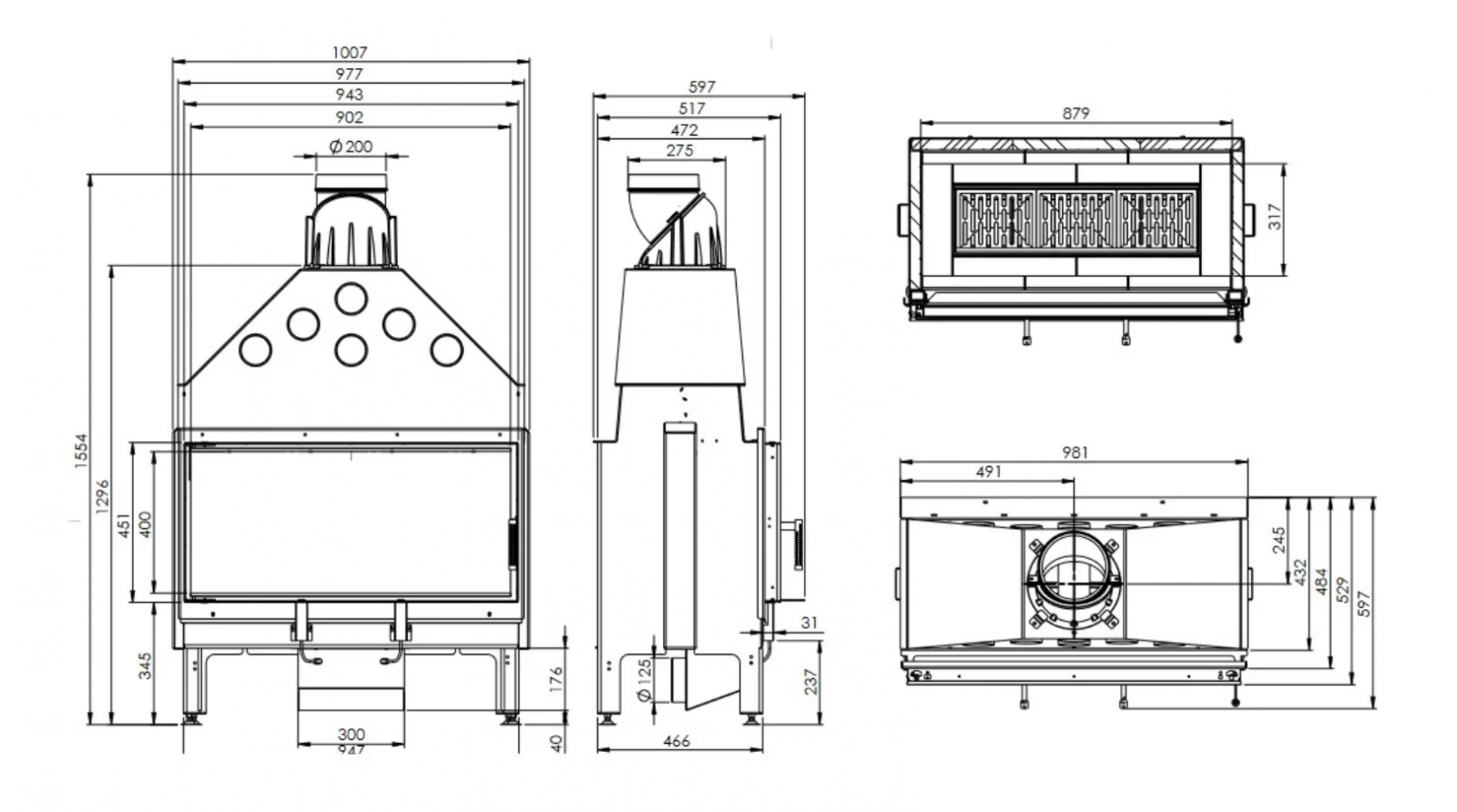
- Přívod vzduchu zvenčí je zajištěn jednoduchým nástavcem a expanzní skříní, která rozvádí vzduch do jednotlivých sacích trubek primárního a sekundárního vzduchu s integrovanými klapkami. Díky tomuto řešení potřebuje vložka pouze jednu trubku přivádějící vzduch zvenčí.
- Systém dodatečného spalování spalin je umístěn v horní části spalovací komory, nad roštem.
- Systém čistého skla: vedení vzduchu se vzduchovou clonou.
- Ocelové dveře vyrobené ze speciálního profilu zajišťujícího tuhost a odolnost vůči vysokým teplotám.
- Vložkové prvky jsou vyráběny na moderních CNC zařízeních (2D, 3D laser, ohraňovací lisy).
- Plášť vložky je vyroben z kotlové oceli P265GH dle EN 10028-2.
- Splňuje standardy BImSchV a ECODESIGN.
- V souladu s požadavky směrnice o ekodesignu v členských státech EU: „Tento výrobek nelze použít jako primární zdroj vytápění“
|
Nominální výkon (kW) |
17 |
|
Rozsah výkonu (kW) |
8,5 - 22 |
|
Účinnost (%) |
79 |
|
|
|
|
Emise CO při 13% O2 (g/m³) |
0,903 |
|
Energetická třída |
A |
|
Váha (kg) |
307 |
|
Rozměr skla (mm) |
900 x 410 |
|
Průměr kouřovodu (mm) |
200 |











