-
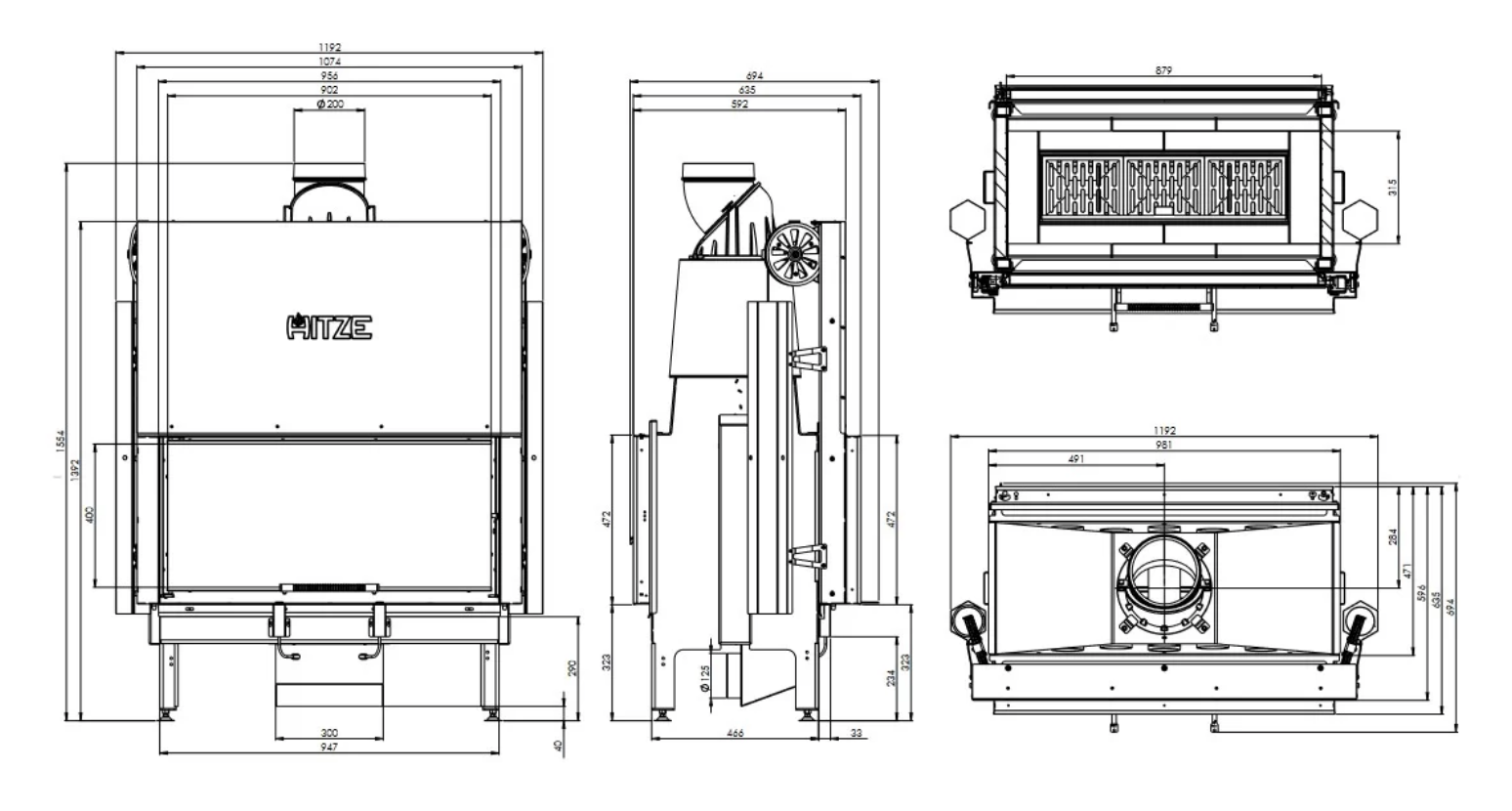
- Vložka tunelového typu pro oboustrannou nebo ostrovní konstrukci.
- Vložka s rozšířenou, hlubokou obdélníkovou spalovací komorou umožňující velké zatížení.
- Výklopný litinový rošt pro pohodlné čištění topeniště .
- Nový typ gilotiny se servisním přístupem.
- Standardně dvě tepelně odolné dekorativní sklenice DECOR ELEGANCE (provozní teplota do 800 stupňů).
- Možnost objednání vyhrazených krytů (ocel s práškovým nástřikem v barvě vložky).
- Ocelové dveře vyrobené ze speciálního profilu zajišťujícího tuhost a odolnost vůči vysokým teplotám.
- Systém čistého skla: oboustranné vzduchové deflektory se vzduchovými clonami.
- Vložkové prvky jsou vyráběny na moderních CNC zařízeních (2D, 3D laser, ohraňovací lisy).
- Plášť vložky je vyroben z kotlové oceli P265GH dle EN 10028-2.
- Splňuje standardy BImSchV II a ECODESIGN.
- V souladu s požadavky směrnice o ekodesignu v členských státech EU: "Tento výrobek nelze používat jako primární zdroj vytápění."
|
Nominální výkon (kW) |
18 |
|
Rozsah výkonu (kW) |
9 - 23 |
|
Účinnost (%) |
79 |
|
|
|
|
Emise CO při 13% O2 (g/m³) |
0,584 |
|
Energetická třída |
A |
|
Váha (kg) |
350 |
|
Rozměr skla (mm) |
900 x 410 |
|
Průměr kouřovodu (mm) |
200 |











