- Vložka tunelového typu pro oboustrannou nebo ostrovní konstrukci.
- Vložka s rozšířenou, hlubokou obdélníkovou spalovací komorou umožňující velké zatížení.
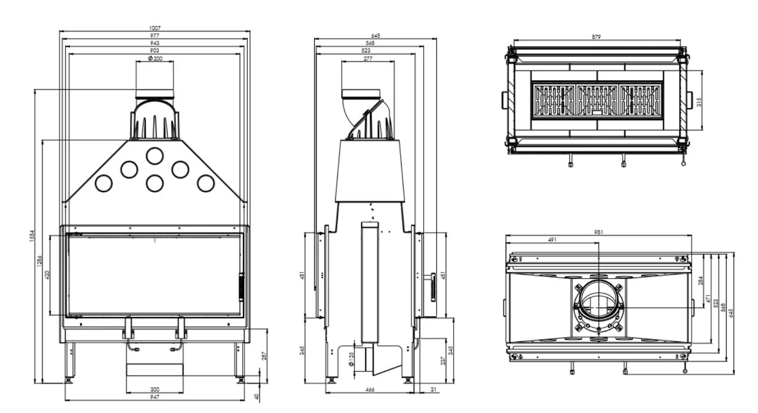
- Výklopný litinový rošt pro snadné čištění topeniště .
- Dvě tepelně odolná dekorativní skla DECOR ELEGANCE standardně (provozní teplota až 800 stupňů)
- Možnost objednání vyhrazených krytů (ocel s práškovým nástřikem v barvě vložky).
- Systém čistého skla: oboustranné vzduchové deflektory se vzduchovými clonami.
- Ocelové dveře vyrobené ze speciálního profilu zajišťujícího tuhost a odolnost vůči vysokým teplotám.
- Vložkové prvky jsou vyráběny na moderních CNC zařízeních (2D, 3D laser, ohraňovací lisy).
- Plášť vložky je vyroben z kotlové oceli P265GH dle EN 10028-2.
- Splňuje standardy BImSchV II a ECODESIGN.
- V souladu s požadavky směrnice o ekodesignu v členských státech EU: „Tento výrobek nelze použít jako primární zdroj vytápění“
| Jmenovitý výkon: | 18 kW |
| Účinnost: | 79 % |
| Přívod externího vzduchu: | 125 mm |
| Dvojité spalování: | ANO |
| Průměr hrdla odvodu spalin: | 200 mm |
| Hmotnost: | 294 kg |
| Rozměr: | 1007x1554x645 mm |
| Rozměr skla: | 900x410 mm |












