Komínový čistící díl průchozí - rozměr 120x245mm (= ø 190mm)
slouží ke kontrole spalinové cesty a jako vybírací otvor pro případné nečistoty usazené v komínu. Součástí je kondenzační jímka s bočním vývodem, její úlohou je odvod kondenzátu nebo přebytečné dešťové vody z tělesa komínu. Na tento čistící díl pasují komínová dvířka 140x140mm, která najdete v naší nabídce.
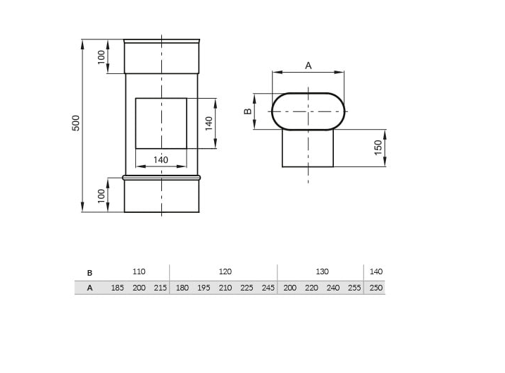
Můžete si zvolit variantu umístění šachty - na široké straně oválu (standardní) nebo na úzké straně oválu (za příplatek).
- výška: 500 mm
- materiál: nerez
- tloušťka: 0,8mm
- třída nerezi: 1.4404
Systém Bokra OVAL 08
je jednovrstvý nerezový komínový systém a je ideálním řešením pro rekonstrukci a vložkování stávajících komínových těles obdélníkového průřezu. Při použití tohoto systému odpadá potřeba frézování komínu pro zachování potřebného průduchu. Vložky jsou vyráběny z materiálu tloušťky 0,8mm ve standardních rozměrech: 120x180mm, 110x215mm, 120x210mm, 120x225mm, 120x245mm s kompletním sortimentem příslušenství. Systém je určen pro všechny druhy paliv, hlavně však pro paliva tuhá. Jednotlivé díly jsou podélně svařovány plazmou a ve své horní části opatřeny hrdlem výšky 100 mm, které umožňuje snadné, bezpečné a pevné spoje. Jednotlivé systémy BOKRA lze vzájemně kombinovat.
Charakteristika systému
- třída nerezi 1.4404;
- průměr od 150mm do 200mm;
- teplota práce max. 450°C;
- tl. stěny 0,8mm;
- podtlakový provoz.
Použití systému
- rekonstrukce stavajících komínů obdélníkového průřezu.
Přednosti systému
- vysoká kvalita;
- dlouhá životnost;
- nízká hmotnost;
- rychlá montáž;
- široká použitelnost;
- všechny typy paliv.













