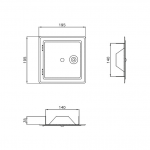
Komínová nerezová dvířka izolovaná v rozměru 140x140mm
jsou vhodná pro čistící díly s rozměrem šachty 140x140mm. Po otevření dvířek lze spalinovou cestu revidovat a čistit. Dvířka jsou opatřena speciální izolací z keramické vlny která zvyšuje teplotní odolnost a právě proto jsou vhodná i do účinné výšky (např. do půdních prostor).
Rámeček dvířek je opatřen zápustnými packami, které zajedou do šachty čistícího dílu a v daném místě se spojí nerezovým nýtem. Součástí těchto dvířek je klíč pro snadné otevírání.
Dvířka jsou kompatibilní s našimi čistícími díly STANDARD 08, STANDARD 05, STANDARD 1
Parametry:
- rozměr: 140x140mm
- tloušťka materiálu 0,8 mm
- třída nerezi: 1.4404















































