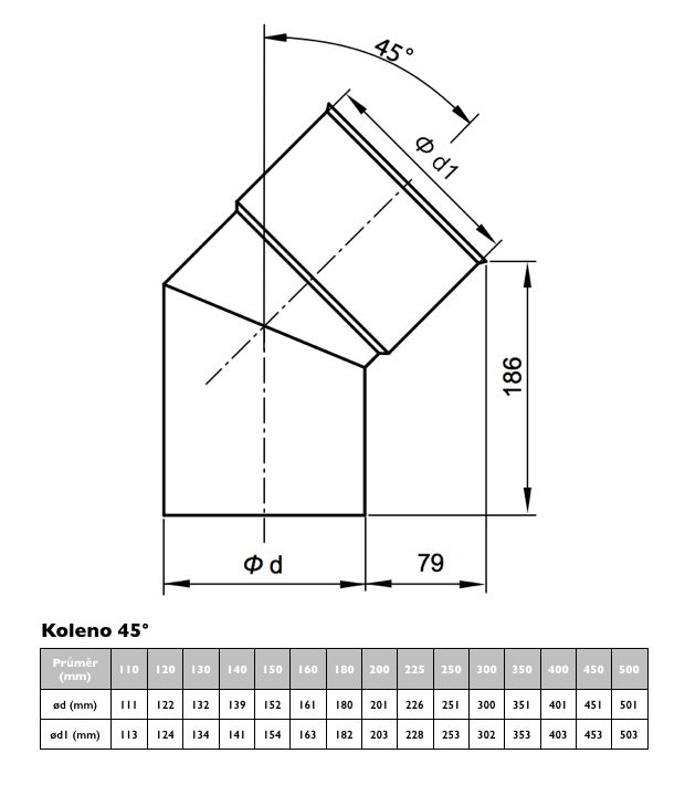
Komínové nerezové koleno 45°, ø 300mm, tl. mat. 0,5mm
používá se primárně při konstrukci nerezového kouřovodu.
- materiál: nerez
- tloušťka: 0,5mm
- třída nerezi: 1.4307
Použití kolen dle ČSN 73 4201:
Pokud je nutné, z konstrukčních důvodů, komínový průduch odklonit, nemá být sklon větší než 15° od svislice. Při moderznizaci stávajících komínů lze v odůvodněných případech zvětšit úhel odklonu až na 30°.
Systém Bokra STANDARD 05
je jednovrstvý nerezový komínový systém a je ideálním řešením pro rekonstrukci a vložkování stávajících komínových těles. V závislosti na tloušťce materiálu 0,5mm je tento systém určený pro odvod spalin od spotřebičů na plyn, LTO a dřevo. Velký rozsah jmenovitých světlostí od ø 110mm až do ø 500mm a široký sortiment dílců a příslušenství umožňuje vložkovat komínová tělesa libovolných průměrů, výšek i tvarů. Jednotlivé dílce jsou podélně svařovány plazmou a ve své horní části opatřeny hrdlem výšky 100 mm, které umožňuje snadné, bezpečné a pevné spoje. Jednotlivé systémy BOKRA lze vzájemně kombinovat.
Charakteristika systému
- třída nerezi: 1.4307
- průměr od 110mm do 500mm;
- teplota spalin max. 450°C;
- tl. stěny: 0,5mm;
- podtlakový provoz.
Použití systému
- rekonstrukce (vložkování) stavajících komínů;
- realizace kouřovodu.
Přednosti systému
- vysoká kvalita;
- dlouhá životnost;
- nízká hmotnost;
- rychlá montáž;
- široká použitelnost.











