Design:
- Poutavá třístranná vložka pro moderní design s maximální viditelností ohně.
- Minimalizace ocelových prvků čela vložky a dvířek při zachování životnosti a těsnosti krbu.
- Kombinované sklo bez potisku maximalizuje přirozený vzhled krbu.
Bezpečnostní:
- Otevírání krbu pomocí nového gilotinového mechanismu zajišťujícího těsnost vložky, bezpečnost proti otevření dětmi a s obslužným přístupem.
- Konstrukce vložky minimalizuje efekt proudění kouře zpět do místnosti při otevírání dveří.
Pohodlí:
- Široké ohniště s dvojitým litinovým roštem (2×175 mm) ve výklopném rámu a nezávislým přívodem vzduchu řízeným klapkou.
- Velká nádoba na popel v podobě vyjímatelné zásuvky pod roštem.
- Automatická údržba čistých oken díky třístrannému vedení vzduchu s nezávislým přívodem vzduchu vytváří vzduchovou clonu chránící okna před nečistotami.
- Venkovní vzduch je přiváděn přes konektor Ø150 a je pak rozdělen do tří nezávislých kanálů Ø90: pod roštem, spodní vzduchová clona, dohořívání spalin a horní vzduchová clona.
Kvalita a ekologie:
- Plášť vložky je vyroben z ušlechtilé kotlové oceli (P265GH dle EN 10028-2) s využitím automatizované výroby a moderních CNC zařízení (2D, 3D laser, ohraňovací lisy).
- Třístranný zasklívací rámeček je vyroben ze speciálního profilu, který zaručuje tuhost a odolnost vůči vysokým teplotám.
- Betonový deflektor umožňuje delší spalování částic paliva, prodlužuje cestu výfukových plynů a optimalizuje proces spalování zvýšením teploty uvnitř komory.
- Zlepšené parametry a účinnost spalování díky obložení spalovací komory žáruvzdornými keramickými panely z keramického betonu, které akumulují teplo ve spalovací komoře. Otvory v zadní stěně topeniště jsou nezávisle ventilovaným systémem spalování spalin.
Instalace:
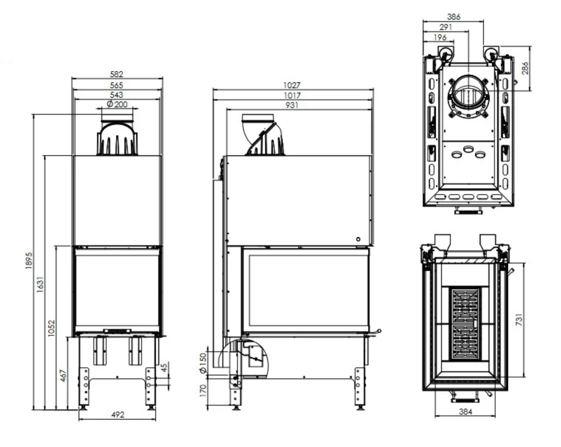
- Vložka je vybavena litinovým nástavcem Ø200 s nastavením 360 stupňů, který umožňuje odvod výfukových plynů v libovolném směru.
- Výšku a vyrovnání krbu lze nastavit pomocí nožiček (můžete odšroubovat další 4 cm).
- "Tento výrobek nelze použít jako primární zdroj vytápění."
|
Nominální výkon (kW) |
12 |
|
Rozsah výkonu (kW) |
6,5 - 15,5 |
|
Účinnost (%) |
78 |
|
|
|
|
Emise CO při 13% O2 (g/m³) |
1,133 |
|
Energetická třída |
A |
|
Váha (kg) |
384 |
|
Rozměr skla (mm) |
540 x 800 x 530 |
|
Průměr kouřovodu (mm) |
200 |















