- Vložka s rozšířenou, hlubokou obdélníkovou spalovací komorou umožňující velké zatížení.
- Výklopný litinový rošt pro snadné čištění topeniště.
- Nový typ gilotiny s obslužným přístupem (2 typy obslužného přístupu dle velikosti vložky).
- Dekorativní žáruvzdorné sklo DECOR (pracovní teplota do 800 stupňů).
- Systém dohoření spalin je umístěn v horní části spalovací komory, nad roštem.
- Přívod vzduchu z venkovního prostoru je realizován přes jeden nástavec a expanzní box rozvádějící vzduch do jednotlivých sacích trubek primárního a sekundárního vzduchu s integrovanými klapkami. Díky tomuto řešení potřebuje vložka pouze jednu trubku přivádějící vzduch zvenčí.
- Systém čistého skla: vedení vzduchu se vzduchovou clonou.
- Ocelové dveře vyrobené ze speciálního profilu, který zaručuje tuhost a odolnost vůči vysokým teplotám.
- Prvky vložky jsou vyráběny na moderních CNC zařízeních (2D, 3D laser, ohraňovací lisy).
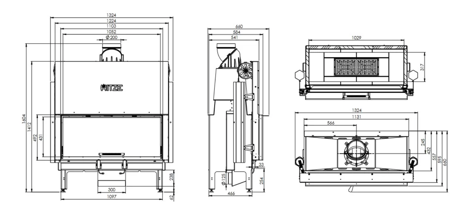
- Plášť vložky je vyroben z kotlové oceli P265GH dle EN 10028-2.
|
Nominální výkon (kW) |
19 |
|
Rozsah výkonu (kW) |
9,5 - 24,5 |
|
Účinnost (%) |
75,5 |
|
|
|
|
Emise CO při 13% O2 (g/m³) |
1,217 |
|
Energetická třída |
A |
|
Váha (kg) |
409 |
|
Rozměr skla (mm) |
1050 x 430 |
|
Průměr kouřovodu (mm) |
200 |









