- Plášť vložky je vyroben z kotlové oceli P265GH dle EN 10028-2.
- Prvky vložky jsou vyráběny na moderních CNC zařízeních (2D laser, 3D laser, ohraňovací lisy).
- Vložka navařená na svařovacím robotu metodou MAG zaručuje vysokou kvalitu a estetiku svarů.
- Ocelové dveře vyrobené ze speciálního profilu, který zaručuje tuhost a odolnost vůči vysokým teplotám.
- Tepelně odolné keramické sklo s provozní teplotou do 800°C.
- Ocelová základna vložky je standardně vybavena škrticí klapkou nasávání studeného venkovního vzduchu.
- Vložka je vybavena vzduchovou clonou, která do značné míry zaručuje zachování efektu čistého skla.
- Speciálně navržená zadní část tělesa umožňuje přívod sekundárního vzduchu do horní části pece. Umožňuje zvýšit účinnost zařízení spalováním výfukových plynů.
- Splňuje standardy BlmSchV II, ECODESIGN a 15a B-VG.
- V souladu s požadavky směrnice o ekodesignu v členských státech EU:
"Tento výrobek nesmí být používán jako primární zdroj vytápění." - Navíc si u každé vložky můžete objednat provedení s dvojsklem, u kterého je při použití kvalitního paliva sklo téměř dokonale čisté.
- Je možné dokoupit vložku s rukojetí práškově lakovanou v černé barvě.
Technické parametry:
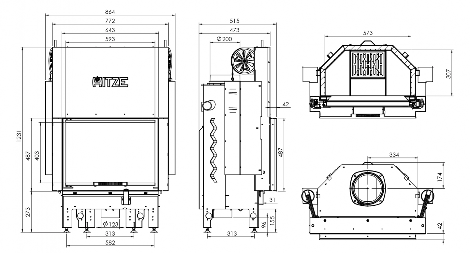
| Jmenovitý výkon: | 11 kW |
| rozsah výkonu: | 5,5 - 14 kW |
| Účinnost: | 83 % |
| Přívod externího vzduchu: | 125 mm |
| Dvojité spalování: | ANO |
| Max. délka polen: | 40 cm |
| Průměr hrdla odvodu spalin: | 200 mm |
| Hmotnost: | 184 kg |
| Rozměr: | 893x1231x580 mm |
| Rozměr skla: | 490x430 mm |











