Minimalistická, ale zároveň dominantní svým tvarem. Česká krbová kamna VELA FS dokonale padnou do prostoru, kde nezaberou ani o kousek víc místa, než je potřeba. Elegantní a kompaktní krbová kamna eliptického půdorysu s bohatou prosklenou čelní plochou, vhodná pro každý interiér. Kamna skvěle vyniknou i uprostřed místnosti. Krbová kamna jsou vhodná pro nízkoenergetické domy. Disponují systémem centrálního přívodu externího vzduchu. Odvětrávaná SKRYTÁ designová klika umožňuje manipulaci během topení. Dveře je možné aretovat v poloze otevřeno. Ve standardu je možné zapojení horního nebo zadního odvodu spalin. Díky sekundárnímu přívodu vzduchu je sklo dvířek omýváno, a tak nedochází k usazování nečistot. Spalovací komora je vyložena betonovými tvarovkami. Regulaci primárního a sekundárního přívodu vzduchu lze řídit jediným ovládacím prvkem.
HLAVNÍ VÝHODY KRBOVÝCH KAMEN VELA FS

MINIMALISMUS
Eliptický a štíhlý tvar krbových kamen VELA FS perfektně doladí každý interiér. LUXUSNÍ integrovaná klika dělá z kamen designové ale zároveň dostupné zboží - kamna se stanou šperkem Vašeho interiéru...
...nadchnou nadčasovým designem, integrovanou klikou dveří a uživatelskypřívětivým ovládáním.
Jednoduchá, přesto elegantní kamna vyniknou v každém typu interiéru.

KVALITNÍ ZPRACOVÁNÍ
Litinový rošt Vám zajistí bezstarostný provoz kamen VELA FS. Dohromady s betonovou komorou tvoří téměř nezničitelnou spalovací komoru.
Odolnější, pevnější a stálejší..
..žárobetonové tvarovky jsou moderními nástupci šamotových cihel. Tvarovky do našich produktů jsou vyrobeny na míru dle našich požadavků pro lepší spalovací proces, jednoduché používání a bezstarostný provoz.
Právě přesně zvolený tvar a důkladně vybrané materiály zabrání praskání tvarovek a tím prodlužují jejich životnost.
S kamny Vela FS získáte nejen spolehlivý zdroj tepla, ale také produkt, který vám poskytne dlouhodobou spokojenost.
- Kamna mohou být použita v nízkoenergetických domech
- Maximální délka polen 35 cm
- Bílá žárobetonová vyzdívka ve spalovací komoře
- Elegantní integrovaná klika, skrytá za dveřmi
- Na povrchu kamen použita speciální nekouřivá barva
- Možnost napojení na centrální přívod vzduchu
- Jednopáčkové ovládání primárního a sekundárního vzduchu
- Samozavírací systém dveří
- Celolitinový rošt
- Dvouzámkové uzavírání pro dosažení lepší těsnosti
- Český výrobce
- Záruka 5 let
- Dodání zdarma
| Hmotnost | 120 kg |
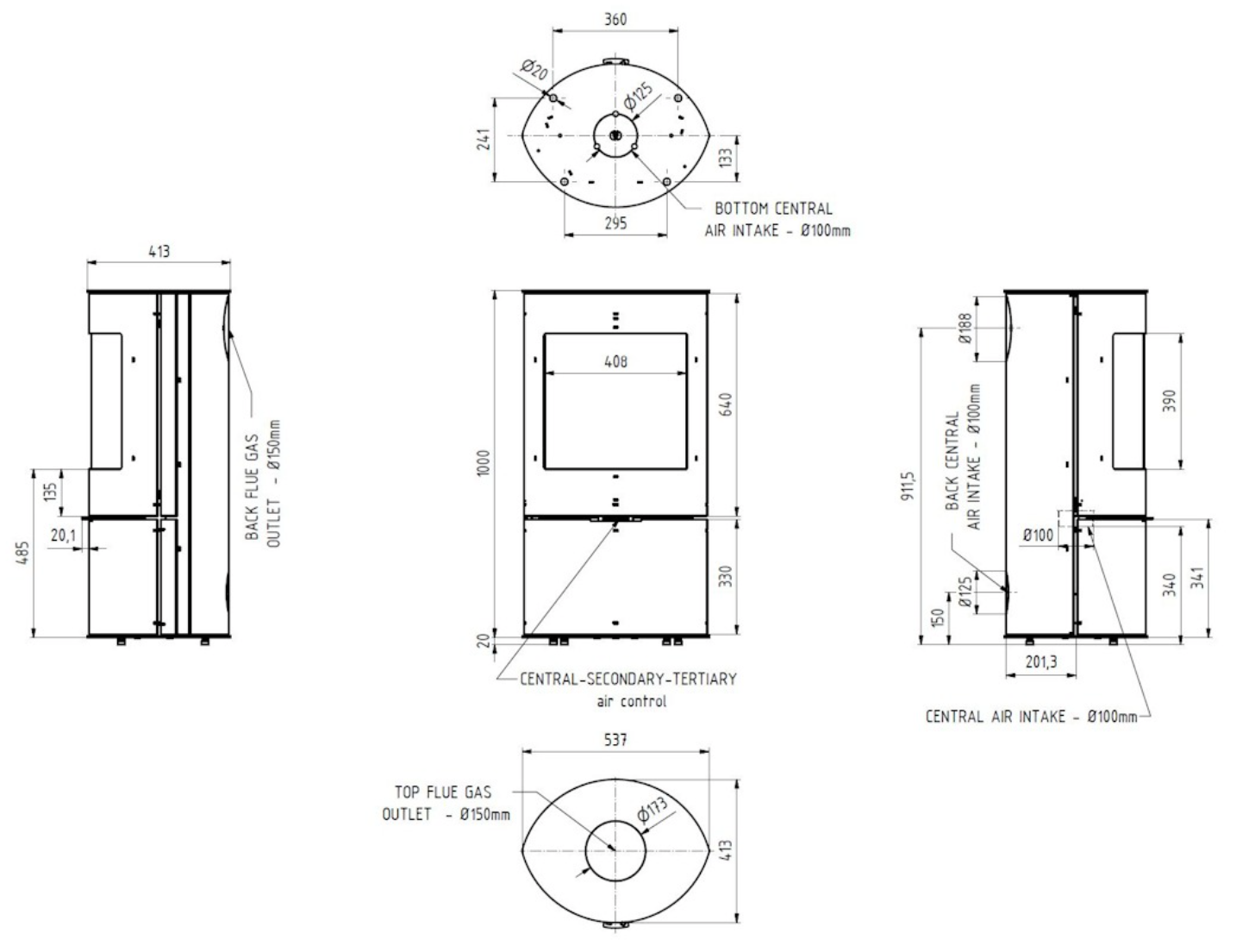
| Výška | 1000 mm |
| Šířka | 537 mm |
| Hloubka | 413 mm |
| Výkon | 4 - 6,5 kW |
| Účinnost | 80,7 % |
| Odvod kouře | 150 mm |
| Přívod vzduchu | 100 mm |
| Max.délka polen | 350 mm |
| Horní/Zadní vývod | Ano/Ano |















