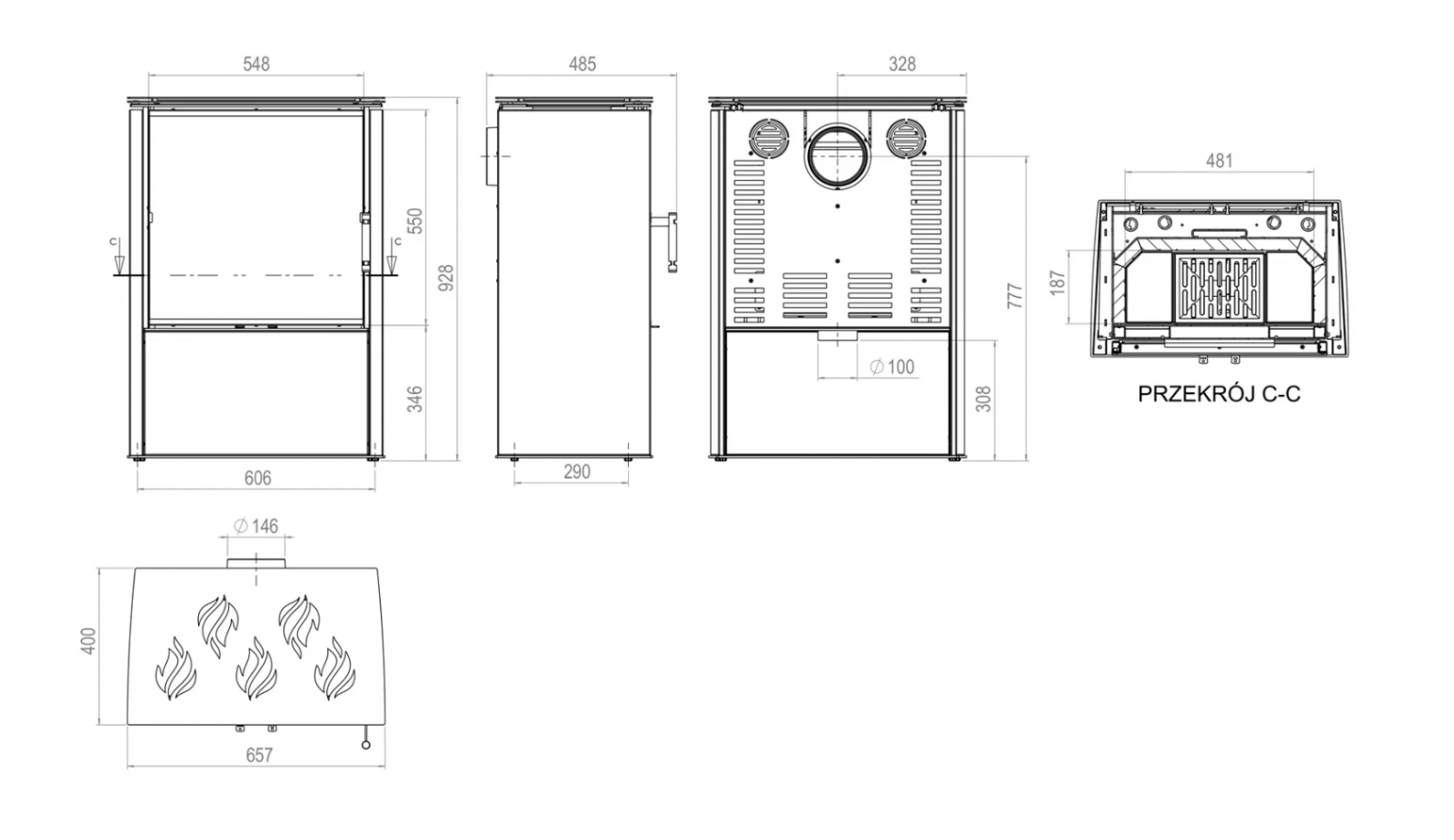
LUPO M volně stojící krb s topnou deskou
Volně stojící kamna LUPO M s topnou deskou je ideálním řešením do středně velkých místností, spojuje funkčnost a eleganci. Díky možnosti odvodu spalin shora a praktickému vybrání na dřevo se tento krb stane nejen zdrojem tepla, ale i stylovým prvkem interiéru. Svou konstrukcí je přizpůsobena domům se systémem rekuperace tepla a dodatečná možnost připojení DGP zajišťuje ještě větší komfort užívání.
Úsporné a efektivní vytápění.
Volně stojící kamna LUPO M se vyznačuje mimořádnou tepelnou účinností a ekonomickým spalováním proschlého dřeva. Vyrobeno z vysoce kvalitní kotlové oceli, zaručuje odolnost proti kolísání teplot a dlouhou životnost. Pokročilý systém třístupňového přívodu vzduchu do spalovací komory v kombinaci s litinovým roštem a snadno vyjímatelnou popelníkovou vanou zajišťuje přesné řízení procesu spalování a maximální účinnost.
Fenomenální vize ohně a vynikající akumulační vlastnosti.
Díky použití originálního materiálu ACCUCERAM zaujme volně stojící kamna LUPO M nejen svým vzhledem, ale také výbornými vlastnostmi tepelné akumulace. Teplo se do místnosti uvolňuje i několik hodin po zhasnutí kamen a komínová keramika poskytuje mimořádně fenomenální pohled na oheň.
Efektivní vytápění sousedních místností.
Volně stojící kamna LUPO M umožňuje díky možnosti napojení na teplovzdušný rozvod vytápět nejen místnost, ve které je umístěn, ale i sousední místnosti. Toto je ideální řešení pro ty, kteří oceňují pohodlí a efektivitu.
Topná deska – více než jen zdroj tepla.
Horní část tělesa LUPO M lze s úspěchem použít jako topnou desku. Je to ideální místo pro přípravu pokrmu nebo vaření vody na čaj, spojení podnikání s potěšením a užívání si tepla plamenů.
Bezpečnost a ekologie v jednom.
Všechny modely volně stojících kamen LUPO včetně varianty M splňují nejvyšší bezpečnostní a ekologické standardy , zaručují ekologické spalování dřeva a bezpečný provoz.
Volně stojící kamna LUPO M je kombinací moderního designu, funkčnosti a účelnosti. Díky němu se váš domov stane ještě teplejším a útulnějším.
|
Jmenovitý výkon |
8,7 kW |
|
Rozsah výkonu |
4 - 11 kW |
|
Třída energetické účinnosti |
A+ |
|
Průměr kouřovodu |
150 mm |
|
Účinnost |
82 % |
|
Teplota spalin |
235 °C |
|
Hmotnost |
140 kg |












