Krbová vložka s teplovodním výměníkem Kratki MBA
Rohové krbové vložky z řady MBA PW jsou ekonomickým a ekologickým řešením s teplovodním výměníkem, která se po instalaci vzhledově neliší od typické vzduchové vložky.
Efektivnější spalování a delší udržování teploty díky obložení spalovací komory TERMOTECem, materiálem akumulujícím teplo, který zvyšuje teplotu v topeništi. Vzduch je do vložky přiváděn výhradně zvenčí, a to díky vestavěné redukci pro přívod vzduchu o průměru 125 mm. Jeho regulace se provádí pomocí sady klapek s jedním regulátorem umístěným pod dvířky, což vylučuje chyby v důsledku nesprávného použití. Celý mechanismus funguje velmi tiše a bez poruch. Vložka využívá systém přívodu vzduchu se třemi spalovacími komorami.
Speciální vodní jednotka skládající se z vodního pláště a vodorovně uspořádaných trubek, kterými proudí voda, umožňuje shromažďování velkého množství tepla ze spalin a jeho předávání do topného systému, díky čemuž je možné dosáhnout vysoké energetické účinnosti vložky. Zařízení má navíc vestavěnou cívku, která jej chrání před přehřátím.
Vložka je vybavena systémem čistého skla – vzduch je distribuován rovnoměrně, zametá sklo a minimalizuje usazování sazí na něm. To umožňuje udržet atraktivní a čistý vzhled skla po dlouhou dobu.
Bezroštová vložka s tzv fenomén dodatečného spalování na popel. V praxi to znamená, že palivo shoří na jemný popel, přičemž zbývá jen minimální množství. Tepelná energie z takto získaného dřeva je využita na maximum.
Speciální perforovaný design madla chrání před nadměrným ohřevem, což zvyšuje komfort používání krbu.
Bezroštová vložka s tzv fenomén dodatečného spalování na popel. V praxi to znamená, že palivo shoří na jemný popel, přičemž zbývá jen minimální množství. Tepelná energie z takto získaného dřeva je využita na maximum.
Speciální perforovaný design madla chrání před nadměrným ohřevem, což zvyšuje komfort používání krbu.
- Kratki řada PRO - záruka 10 let
| Nominální výkon (kW) | 17 |
|---|---|
| Rozsah výkonu (kW) | 9.0 - 19.5 |
| Výkon z vody (kW) | 9 |
| Max. provozní tlak (bar) | 2 |
| Objem výměníku (l) | 47 |
| Účinnost (%) | 86 |
| Max. délka polen (cm) | 50 |
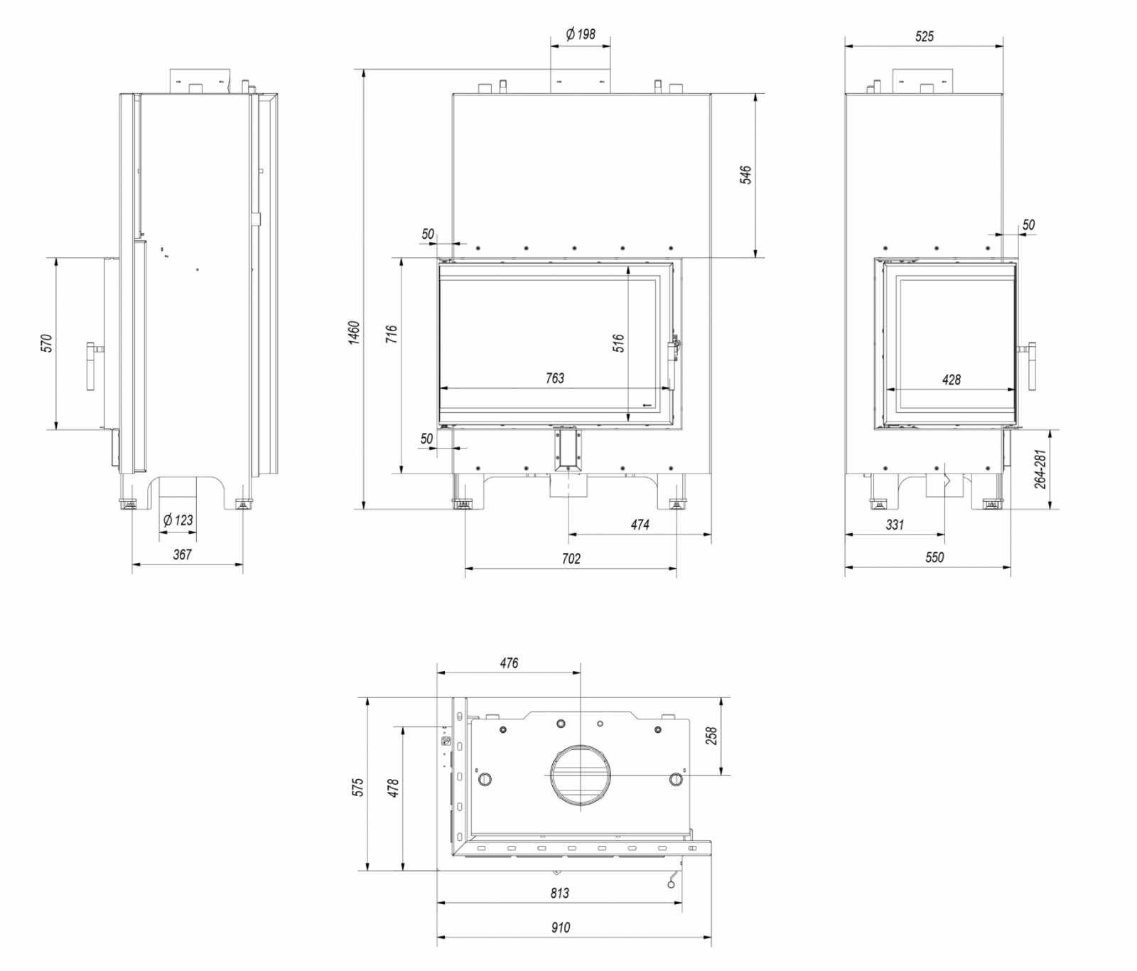
| Šířka (cm) | 91 |
|---|---|
| Výška (cm) | 146 |
| Hloubka (cm) | 57.5 |
| Váha (kg) | 293 |











