- Plášť vložky je vyroben z kotlové oceli P265GH dle EN 10028-2.
- Prvky vložky jsou vyráběny na moderních CNC zařízeních (2D laser, 3D laser, ohraňovací lisy).
- Vložka navařená na svařovacím robotu metodou MAG zaručuje vysokou kvalitu a estetiku svarů.
- Ocelové dveře vyrobené ze speciálního profilu, který zaručuje tuhost a odolnost vůči vysokým teplotám.
- Tepelně odolné keramické sklo s provozní teplotou do 800°C.
- Ocelová základna vložky je standardně vybavena škrticí klapkou nasávání studeného venkovního vzduchu.
- Vložka je vybavena vzduchovou clonou, která do značné míry zaručuje zachování efektu čistého skla.
- Speciálně navržená zadní část tělesa umožňuje přívod sekundárního vzduchu do horní části pece. Umožňuje zvýšit účinnost zařízení spalováním výfukových plynů.
- Splňuje standardy BlmSchV II, ECODESIGN a 15a B-VG.
- Je možné dokoupit vložku s rukojetí práškově lakovanou v černé barvě.
KVALITA:
Vodní plášť (ohřívač) je vyroben z kvalitní kotlové oceli P265GH o tloušťce 4 mm. Robustní svary pláště jsou prováděny na svařovacím robotu. Byl použit vyztužený dveřní profil.
BEZPEČNOST:Vestavěná cívka je automatický chladič pláště. Inovativní ventilovaná rukojeť chrání před popálením.EKOLOGIE:
Systém dodatečného spalování spalin a umístění vodního pláště nad topeništěm se promítají do výjimečně vysoké účinnosti vložek.ČISTOTA:
Vzduchová clona poskytuje efekt "čistého skla". Snadné čištění je možné díky litinovému roštu s vyjímatelným popelníkem.INSTALACE:
Schopnost pracovat v otevřeném a uzavřeném systému. Vhodné pro domy s rekuperací.SNADNÉ POUŽITÍ:
Vestavěné sání se škrticí klapkou umožňuje plynulou integrovanou regulaci množství přiváděného vzduchu.
Technické parametry:
| Jmenovitý výkon: | 19 kW |
| Rozsah topného zatížení: | 9,5-24 kW |
| Účinnost: | 83 % |
| Výkon do vody: | 7,2 kW |
| Dvojité spalování: | ANO |
| Teplota spalin: | 226 °C |
| Průměr hrdla odvodu spalin: | 200 mm |
| Hmotnost: | 217 kg |
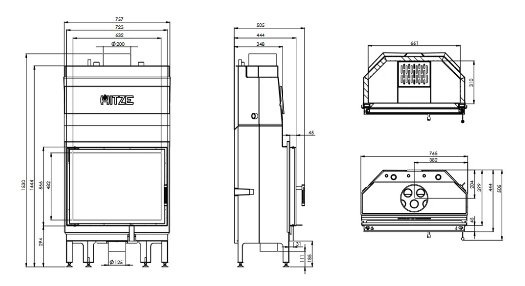
| Rozměr: | 757x1530x505 mm |
| Rozměr skla: | 680x530 mm |











