Generátor tahu ø200 mm
Generátor tahu je komínová hlavice namontovaná na ústí ventilačního nebo spalinového komínu (odvádějící spaliny od spotřebičů na plyn, LTO a dřevo). Jeho posláním je zvýšit a stabilizovat tah komínu nezávisle na výšce komínu, větru či jiných vnějších faktorech. Generátor tahu vytváří podtlak v komínu využitím fyzikálního jevu - injekce. Jedná se o vytvoření podtlaku v komínu generováním proudění vzduchu. Průtok vzduchu vytvořený ventilátorem je umístěn mimo kouřovod. Toto chování nebrání odvodu spalin a poskytuje navíc odolnost vůči vysokým teplotám.
Použití:
- podpora tvorby komínového tahu a odvodu spalin
- stabilizace komínového tahu při nepravidelných poryvech větru
- nepříznivá konfigurace terénu se silnými a častými větry
- je-li komín příliš krátký nebo má malý průměr, který vytváří příliš slabý komínový tah
Technické údaje:
Maximální podtlak (Pa): 29
Maximální výkonnost (m3/h): 450
Napětí jednofázové (V/Hz) : 230/50
Výkon (W): 141
Stupeň ochrany: IP34
Provozní rozsah okolní teploty (°C): -30° - +65°
Maximální teplota spalin (°C): 400
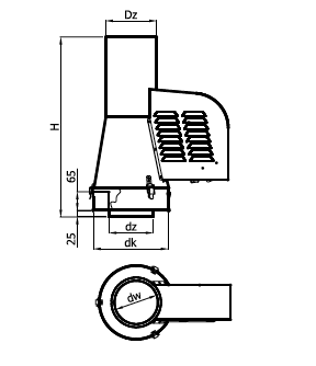
Rozměry ø 200 mm
dz: 199 mm
H: 686 mm
dk: 303 mm
Dz: 230 mm
Váha: 10,40 kg








