Popis krbové vložky
• je určena pro konvekční provoz
• Perfect UP - speciálně navržený systém
hladkého a tichého výsuvu dveří pro
pohodlnou obsluhu
• výsuvný systém dveří možno servisovat i z topeniště
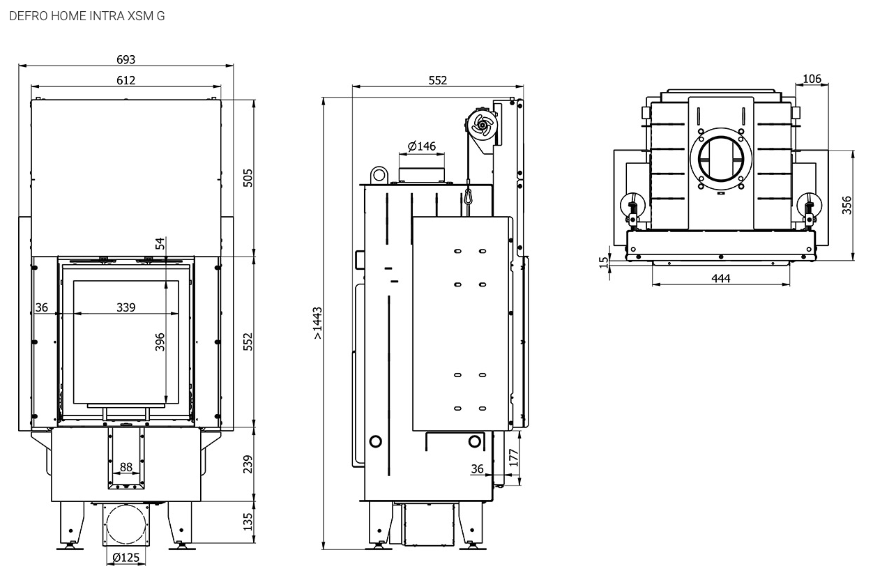
• centrální přívod vzduchu - speciální box
umožní připojení hadice přívodního vzduchu k
vložce s možností napojení ze strany
• Multiflow - patentované řešení dodávání
vzduchu pro spalování/dvojité spalování
• propracovaný systém oplachu skla
• Black line - sklo s černým potiskem
• topeniště z masivního akumulačního materiálu
• vyztužené speciálními ocelovými drátky
• splňuje normy: Blmsch V Stufe2 a program Eko design
• stavitelné nožky - rozsah nastavitelných nožiček od 0 do 100 mm
• systém trubkových průduchů - průduchy
navyšují efektivitu krbové vložky
|
Jmenovitý výkon |
8 kW |
|
Rozsah výkonu |
3,2 - 9,6 kW |
|
Třída energetické účinnosti |
A+ |
|
Průměr kouřovodu |
150 mm |
|
Účinnost |
80,9 % |
|
Teplota spalin |
250 °C |
|
Komínový tah |
12±2 Pa |
|
Maximální délka polen |
350 mm |
|
Hmotnost |
192 kg |









